We found 0 results. View results

Renovuotas namas su bendru baseinu, Malaga provincijoje, Marbella mieste, Nueva Andalucia rajone. 4 kambariai | 235 m² | 2 kilometrai iki jūros

950,000€ | 4,042 €/m²
Urb. Altos del Rodeo, Marbella, Marbella, Nueva Andalucia

Parduodamas renovuotas namas su bendru baseinu, Ispanijoje, Malaga provincijoje, Marbella mieste, Nueva Andalucia rajone

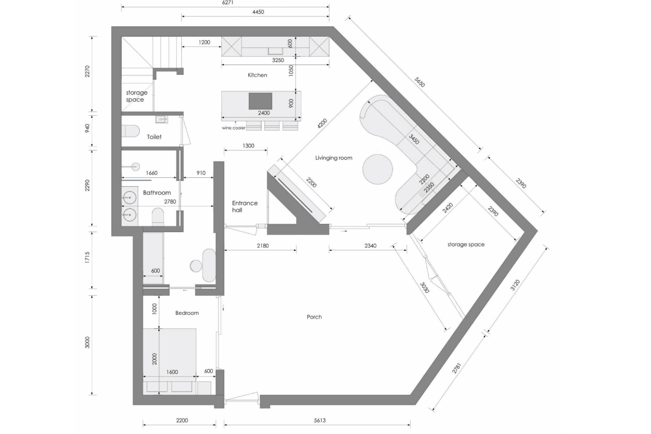
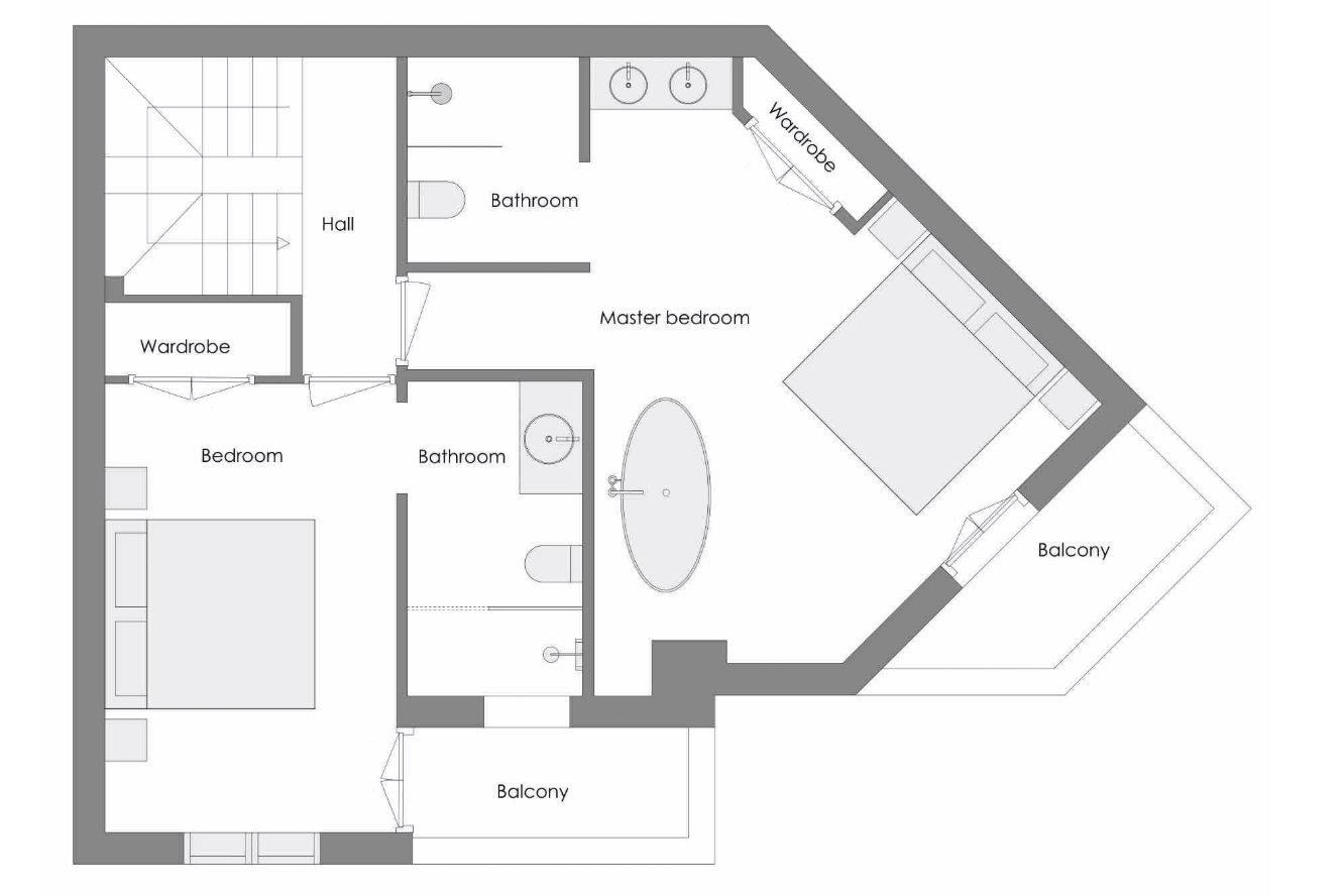
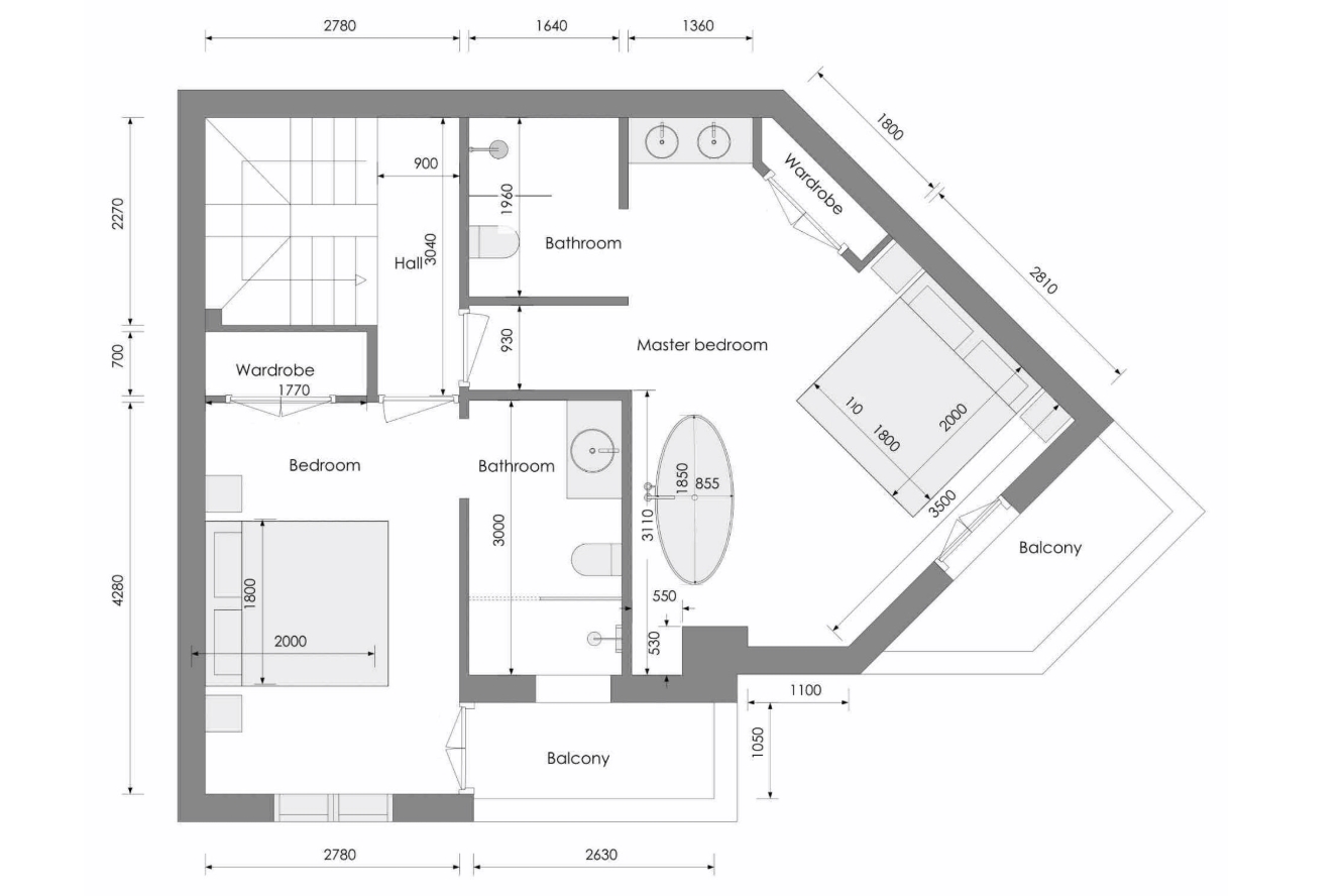
4-ių kambarių renovuotas namas su bendru baseinu, Ispanijoje, Malaga provincijoje, Marbella mieste, Nueva Andalucia rajone, bendras plotas 235 m², 2 kilometrai iki jūros, 57 kilometrai iki Malaga oro uosto. Turtui priklauso bendras baseinas, terasa, balkonas, vieta automobiliui. Netoli turto yra parduotuvės, restoranai, autobusų stotelės, vaikų zonos, degalinės, žalios zonos, kavinės, vaistinės, ligoninė


Nekilnojamo turto ypatybės

Šalis: Ispanija
Provincija: Malaga
Miestas: Marbella
Rajonas: Nueva Andalucia
Turto rūšis: Namas
Plotas: bendras plotas 235 m²
Kambariai: 3 miegamieji, 3 vonios kambariai
Atstumas iki jūros: 2 kilometrai
Atstumas iki oro uosto: 57 kilometrai iki Malaga oro uosto
Papildoma informacija: Įrengtas, oro kondicionierius, bendras baseinas, terasa, balkonas, vieta automobiliui, renovuotas

Dėl daugiau informacijos susisiekime info@is-realestate.com, +34 865 945 773 whatsapp


Informacija apie miestą

Marbella – prabangus kurortinis miestas Costa del Sol pakrantėje, garsėjantis nuostabiais paplūdimiais, šiltu klimatu ir audringu naktiniu gyvenimu. Miestas gali pasigirti turtinga istorija, kurią liudija maurų laikų įžymybės, tokios kaip Alcazaba pilis ir Baños Árabes pirtis.

Lankytojai plūsta į Marbeljos miestą, kuriame žaviai dera poilsis ir įspūdžiai, mėgaujasi saulės nutviekstu La Fontanilla paplūdimiu, tyrinėja spalvingą Puerto Banuso prieplauką ir vaikštinėja po prabangią La Milla Dorada gatvę. Nesvarbu, ar ieškote ramybės, ar linksmybių, Marbella žada nepamirštamą kelionę.


Nekilnojamo turto galimybės

– Tinkantis Nuomai
– Tinkantis ilgalaikiui gyvenimui
– Aukšta investicinė grąža

Nekilnojamo turto rezervacija

Galima būsto rezervacija nuotoliniu būdu bei atvykus į vietą. Rezervavus pradedami visų dokumentų tvarkymai iki Jūsų būsto raktų padavimo.


Nekilnojamo turto įsigijimo eiliškumas

  • Prieš atvykstant atsiunčiame nekilnojamojo turto pardavimo pasiūlymus, konsultuojame, rezervuojame atostogų būstą
  • Atvykę atostogaujate ir apžiūrite nekilnojamą turtą. Aprodome jums potencialiausius turtus, pagal jūsų poreikius ir biudžetą
  • Sutvarkome visus dokumentus, atidarome sąskaitą banke bei padedame gauti paskolą Ispanijos bankuose
  • Galime pasiūlyti būsto administravimo paslaugą (Svečių pritraukimas, patalpų valymas, svečių įleidimas, būsto priežiūra bei įruošimas)

Kontaktai, bei kitos paslaugos

Nekilnojamo turto pardavimai
Turto administravimas
Būstų nuoma
Automobilių nuoma
– Konsultacijos telefonu, messenger, whatsapp ir kt.

– Buhalterinės ir juridinės paslaugos
– Būstų remonto ir statybų paslaugos

Paskambink

+34 865 945 773 Whatsapp
+370 606 72911

Parašyk

info@is-realestate.com

Socialinės medijos

Facebook
Instagram

  • Updated On:
  • 10/10/2025
  • 3 Bedrooms
  • 3 Bathrooms
  • 235 m2
Address: Urb. Altos del Rodeo, Marbella
State/County:
Country: Spain
Property Id: 312783
Price: 950,000€ | 4,042 €/m²
Property Size: 235 m2
Rooms: 4
Bedrooms: 3
Bathrooms: 3
Coastal Area
1 km - 5 km to the beach
Views
View of the mountains
Other Features
Air conditioner
Furniture
Parking included
Terrace
Transport
Supermarkets
Schools
Restaurants
Pharmacies
Hospitals
yelp logo
Thu 28 May
Fri 29 May
Sat 30 May
Sun 31 May
Mon 01 Jun
Tue 02 Jun
Wed 03 Jun
Thu 04 Jun
Fri 05 Jun
Sat 06 Jun
In Person
Video Chat
Your information
Sales

Vila su privačiu baseinu, Malaga provincijoj...

4,895,000€ | 9,468 €/m²
Parduodama vila su privačiu baseinu, Ispanijoje, Malaga provincijoje, Marbella mieste, Nue ...
5 5 517 m2details
Sales
Nauja Statyba

Statoma vila, Malaga provincijoje, Marbella ...

3,500,000€ | 7,216 €/m²
Parduodama statoma vila, Ispanijoje, Malaga provincijoje, Marbella mieste, Rytų Marbella r ...
5 5 485 m2details
Sales
Renovuotas

Renovuota vila su privačiu baseinu, Malaga p...

6,500,000€ | 19,345 €/m²
Parduodama renovuota vila su privačiu baseinu, Ispanijoje, Malaga provincijoje, Marbella m ...
5 5 336 m2details
Sales

Vila su privačiu baseinu, Malaga provincijoj...

5,995,000€ | 8,988 €/m²
Parduodama vila su privačiu baseinu, Ispanijoje, Malaga provincijoje, Marbella mieste, Nue ...
5 6 667 m2details

Contact Me

  • Susisiekime

    +34 631 134 771
    info@is-realestate.com

  • Advanced Search

  • Recent Posts

Languages »

Compare Listings

Thomas Thomas